Overview
Within This Page
A fire station supports the needs of the fire department and the community in which it is located. It must accommodate extremely diverse functions, including housing, recreation, administration, training, community education, equipment and vehicle storage, equipment and vehicle maintenance, and hazardous materials storage. While it is usually only occupied by trained personnel, the facility may also need to accommodate the general public for community education or outreach programs.
Fire stations will vary somewhat in design depending on specific mission, i.e., the types of emergencies that will be responded to or the types of fires that will be fought. Usually, the facility differences relate to the size of the firefighting apparatus and facility location. The location of the facility is largely driven by the need to minimize response time. For example, aircraft rescue firefighting (ARFF) stations provide fire protection to flight lines and aircraft and are located adjacent to the runways on airport property. Similarly, stations with hazardous waste response teams are located near likely spill sites, etc.
Building Attributes
A. Space Types and Building Organization
Major fire station functional areas include the following:
- Apparatus bay(s): This is where the fire fighting and emergency response vehicles are stored.
- Apparatus bay support and vehicle maintenance: These industrial spaces are where the vehicles and other fire fighting equipment are cleaned, maintained, and stored.
- Administrative and training areas: These include offices, dispatch facilities, and training and conference rooms.
- Residential areas: These include the dorm rooms, day room/kitchen, and residential support areas such as bathrooms and fitness spaces.
The two primary drivers for facility layout and functional space adjacencies in a fire station are the following:
- Ensure that internal response times can be met (time for a firefighter to reach the apparatus and be ready to depart).
- Separate the diverse and sometimes conflicting functions such as industrial maintenance spaces and residential spaces.
Sample adjacency diagram for a fire station. Developed by DMJM Design, Arlington, VA
Apparatus Bays
By placing the apparatus bay between the maintenance and support functions and the residential and administrative functions, both primary layout goals can be accomplished. Some of the adjacencies shown above may be accommodated through a hallway rather than a direct entrance/exit from one space to another. This is particularly true with the apparatus bay and the day room as many facility spaces require an adjacency with these two spaces.
This approach to the layout can also accommodate expansion of the apparatus bay on the other side of the support and maintenance areas, although care must be taken to ensure that internal response times can be met after any expansion.
Sizing the apparatus bay is critical, and it should be designed to accommodate variable vehicle sizes. Typically, the entire room is sized based on the bay size for the largest vehicle in the fleet or the largest anticipated vehicle. Bays also include vehicle exhaust removal systems, compressed air and power drop lines, and hot and cold water connections. Bay doors must also accommodate the largest vehicle and include a manual means to open in case of power failure. Ideally, the site will accommodate drive-through bays.
Sample functional layout for a fire station. Developed by DMJM Design, Arlington, VA
Apparatus Bay Support and Vehicle Maintenance
Apparatus bay support functions include cleaning and maintenance areas for the firefighter's self-contained breathing apparatus (SCBA), protective clothing, fire extinguishers, and other equipment. It also includes storage areas for firefighting gear and equipment and secure storage for medical supplies. Some of these areas are specialized spaces for disinfecting protective equipment and for maintaining and recharging the SCBA in a clean environment. See also Light Industrial space type.
Agent storage is typically provided in a single-story structure separate from the fire station building. It should be located along the drive leading into the Apparatus Bay for ease of loading and unloading of fire fighting agents. In some cases, it may be attached to the main structure.
A vehicle maintenance bay may also be included in a fire station. It is a dedicated maintenance area for the fire fighting apparatus and includes a heavy-duty lift and all utility connections required for large vehicle maintenance.
Administrative and Training Areas
Administrative areas include standard offices and conference and training rooms. The area will also likely include additional specialized spaces such as the chief's office with sleeping and shower facilities and computer training/testing facilities for firefighter continuing education. Some stations may include a highly specialized dispatch room for receiving emergency calls from the public.
Residential Areas
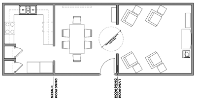
The day room accommodates kitchen, dining, and living/recreation functions. It is often separated into subspaces for those three functions, but an open design may also be effective to encourage interaction between the spaces. The dining space may also double as training or meeting space and might include provisions for audiovisual equipment.
Sample day room layout for a fire station. Developed by DMJM Design, Arlington, VA
Dorm room design can vary widely from station to station and department to department. Each firefighter is provided with a place to sleep, work, and store personal items. Careful consideration should be given to the location and design of the area to ensure response times can be met. See Emerging Issues below for more information on dorm rooms.
Other residential areas include a laundry room, a physical fitness room, bathrooms and showers, and possible additional recreation spaces such as an outdoor patio and game room.
B. Design Considerations
Key design goals and considerations for fire stations include the following:
Promote Occupant Quality of Life
Fire stations are occupied 24 hours a day, seven days a week by personnel in continuous 24-hour shifts. Therefore, ensuring a comfortable living environment for the firefighters is paramount:
- Provide ample natural light.
- Provide individual dorm rooms, if budget allows.
- Provide ample recreation areas and separate noisy areas (such as a game room) from quieter areas (such as a television room).
- Avoid institutional and unnatural finishes, textures, and colors.
Maintain a Safe and Healthy Environment
As above, due to the continuous occupation of the facility by firefighters and the presence of hazardous materials, special attention must be given to designing the facility to accommodate equipment and operational strategies to both protect the occupants and maintain a healthy environment. Consider the following critical elements:
- Provide a secure facility for both personnel and materials such as controlled medical supplies and hazardous fire suppression agents.
- Use non-toxic building materials and improved maintenance practices.
- Ensure good indoor air quality and abundant natural light in the residential and administrative areas.
- Ensure good ventilation of industrial areas such as the apparatus bay and prevent contamination of clean spaces such as the SCBA maintenance areas.
- Ensure that equipment, furnishings, and finishes do not contain asbestos or lead.
Ensure Flexibility
As fire fighting technology evolves, fire stations need to evolve as well. Consider the following areas:
- Plan for potential expansion, both in the apparatus bay area and the residential areas.
- Ensure appropriate product/systems integration.
- Design for the changing nature of work.
Emerging Issues
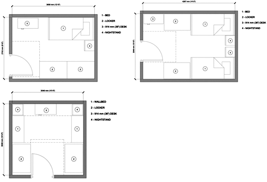
One emerging issue in fire station design is the additional attention given to firefighter quality of life. As noted above in design considerations, one way to promote quality of life is to provide separate dorm rooms for each firefighter. Typically, each room is shared between firefighters of different crews/shifts so that the room is never occupied simultaneously. Individual lockers are provided for each firefighter. A bed, nightstand, and desk are shared.
Some departments are taking this one step further and providing separate beds for each firefighter. Wall-beds, also known as "Murphy-beds," are also becoming a common alternative. These combine the qualities of an individual bed with added space savings.
Three sample dorm room layouts for a fire station. Developed by DMJM Design, Arlington, VA
Relevant Codes and Standards
Standard federal and state building codes apply, as appropriate. There are also numerous codes and standards that apply to the staffing and operation of a fire/rescue department; key standards include the following:
- AC 150/5210–15A Aircraft Rescue and Firefighting Station Building Design, Federal Aviation Administration (FAA)
- Fire Suppression Rating Schedule (FSRS), ISO Mitigation (Insurance Services Office)
- NFPA 403: Standard for Aircraft Rescue and Fire Fighting Services at Airports, National Fire Protection Association
- NFPA 1500: Standard on Fire Department Occupational Safety and Health Program, National Fire Protection Association
- NFPA 1581: Standard on Fire Department Infection Control Program, National Fire Protection Association
- NFPA 1710: Standard for the Organization and Deployment of Fire Suppression Operations, Emergency Medical Operations and Special Operations to the Public by Career Fire Departments, National Fire Protection Association
- NFPA 1720: Standard for the Organization and Deployment of Fire Suppression Operations, Emergency Medical Operations and Special Operations to the Public by Volunteer Fire Departments, National Fire Protection Association
Department of Defense
- DoD Instruction 6055.6 DoD Fire and Emergency Services (F&ES) ProgramDownload 605506p.pdf
- FC 4-730-10N Navy and Marine Corps Fire Stations
- UFC 4-730-10 Fire Stations (USACE and Air Force Only)